| Площадь общая, м2 | 322 |
| Инвентарный номер | 253/D-4902 |
| Характеристика предмета торгов, иные сведения о предмете торгов | Указана в приложенной документации |
|
Описание имущества
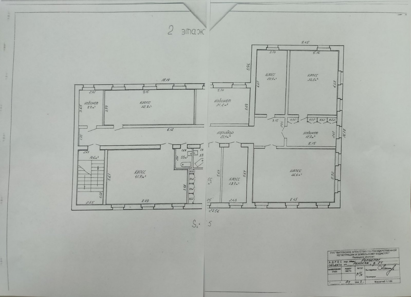
Лот №1. Изолированное помещение с инв. №253/D-4902, общей площадью 322,1 кв.м., наименование – учебный комбинат, назначение – помещение образовательного, воспитательного и (или) научного назначения, расположенное по адресу: Витебская область, Россонский р-н, гп Россоны, ул. Лапенко, д.27, пом.2.
|
|
| Изображения имущества |
|
| Документы прилагаемые к имуществу |
|
| Сведения об обременениях | нет |
| Форма собственности | коммунальная |
| Собственник имущества | Россонский район |
| Номер решения о продаже имущества | 659 |
| Дата решения о продаже имущества | 30.09.2025 |
| Сведения о публикации в газете |
|
| Перечень лиц, которые могут быть допущены к участию в торгах |
|
| Контактное лицо для осмотра | Белостоцкая Елена Павловна |
| Телефоны контактного лица | +375 336100858 |
| Порядок осмотра предмета торгов | Ознакомиться с предметом торгов можно в рабочие дни с 09:00 до 16:00 по предварительному согласованию с Продавцом |
| Наименование | Управление по сельскому хозяйству и продовольствию Россонского района» |
| Контакты | 8 02159 5 16 68 |
| Адрес | 211471, Республика Беларусь, Витебская область, г.п. Россоны, ул. Советская, 4 |
| Наименование | Коммунальное консалтинговое унитарное предприятие "Витебский областной центр маркетинга" |
| УНП | 390477566 |
| Контактный телефон | +375212246312 |
| Контактный Email | info@etpvit.by |
| Адрес | Республика Беларусь, Витебская область, Витебск, г. Витебск проезд Гоголя, 5 |
| Реквизиты | УНП:390477566, р/с: BY93MTBK30120001093300066782, валюта: BYN в ЗАО "МТБанк" (BIC: 153001117) |
| Наименование | Коммунальное консалтинговое унитарное предприятие «Витебский областной центр маркетинга» |
| УНП | 390477566 |
| Контактный телефон | 8 (0212) 24-63-12, +375 29 514-36-47 |
| Контактный Email | info@marketvit.by |
| Адрес | 210015, Республика Беларусь, г. Витебск, проезд Гоголя, 5 |
|
Обязательные условия проведения торгов
в течение 3 (трех) рабочих дней с даты утверждения протокола аукциона возместить затраты на организацию и проведение торгов, в том числе расходы, связанные с изготовлением и предоставлением участникам торгов документации, необходимой для его проведения, услуги Оператора ЭТП согласно прейскуранту, размещенному на сайте ЭТП, расходы Продавца на проведение независимой оценки на р/с, указанный в протоколе торгов в размере 408,24 бел. руб. с НДС
|
|
|
Порядок и сроки оплаты предмета торгов (включая информацию о возможности предоставления рассрочки по оплате предмета торгов)
оплатить предмет электронных торгов в порядки и сроки, установленные договором купли-продажи. Возможность предоставления рассрочки оплаты в соответствии с законодательством Республики Беларусь
|
|
|
Срок подписания договора, оформляемого по результатам электронных торгов
не позднее 5 рабочих дней со дня проведения торгов подписать договор купли-продажи
|
|
|
Порядок оформления участия в электронных торгах
|
|
|
Перечень представляемых участниками электронных торгов документов и требования к их оформлению
Для участия в электронных торгах лицу, желающему принять участие, необходимо направить электронную заявку на участие в торгах и приложить изображение документа, подтверждающего факт оплаты задатка. Данный документ необходимо прикрепить в лоте в поле «Прикрепить подтверждение оплаты» и ожидать одобрения оператора электронной торговой площадки etpvit.by. После одобрения на электронную почту, указанную при аккредитации на ЭТП приходит уведомление с уникальным кодом участника. |
|
|
Порядок, в соответствии с которым проводятся торги
Электронные торги проводятся в порядке, установленном Постановлением Совета Министров Республики Беларусь от 12.07.2013 N 608 «Об утверждении Положения о порядке проведения электронных торгов» и Регламентом ЭТП. |
|
|
Порядок определения победителя электронных торгов
В ходе торгов участники вносят предложения путем последовательного повышения начальной цены предмета торгов, увеличенной на величину шага торгов. Победителем торгов признается участник, предложивший наибольшую цену за предмет торгов. Если заявление на участие в торгах подано только одним участником или электронную регистрацию прошел только один участник, то предмет торгов продается этому участнику при его согласии на приобретение предмета торгов по начальной цене, увеличенной на 5 процентов. Такое согласие участник подтверждает путем внесения предложения о приобретении предмета торгов на указанных условиях в течение 10 минут со времени начала проведения торгов. Отсутствие данного предложения признаётся отказом от приобретения предмета торгов на предлагаемых условиях. |
|
|
Порядок внесения задатка, реквизиты банковского счета для внесения задатка
Перечисление задатка производится лицом, желающим принять участие в торгах, на расчетный банковский счет оператора электронной торговой площадки не позднее даты и времени окончания приема заявлений на участие в торгах. |
| Определение начальной цены продажи | Определяется организатором |
| Понижение начальной цены, до % | 80% |
| Начальная цена недвижимого имущества, бел.руб | 11 180.00 BYN Справочно по курсу НБРБ |
| Начальная стоимость | 11 180.00 BYN Справочно по курсу НБРБ |
| Сумма задатка для участия | 1 118.00 BYN Справочно по курсу НБРБ |
| Срок внесения задатка | до 09.03.2026 16:00:00 |
|
Порядок внесения задатка
Срок внесения задатка и время окончания приема заявлений с прилагаемыми документами: до 16.00 09.03.2026. Сумма задатка перечисляется оператору электронных торгов на р/с: №BY93MTBK30120001093300066782 ЗАО «МТБанк» г. Минск, БИК MTBKBY22, УНП 390477566. Получатель – ККУП «Витебский областной центр маркетинга»
|
|
|
Информация о порядке и сроках возмещения затрат
в течение 3 (трех) рабочих дней с даты утверждения протокола аукциона возместить затраты на организацию и проведение торгов, в том числе расходы, связанные с изготовлением и предоставлением участникам торгов документации, необходимой для его проведения, услуги Оператора ЭТП согласно прейскуранту, размещенному на сайте ЭТП, расходы Продавца на проведение независимой оценки на р/с, указанный в протоколе торгов в размере 408,24 бел. руб. с НДС
|
|
| Сумма затрат на организацию и проведение торгов |
Не указано * - окончательная сумма затрат будет известна на следующий день после окончания приема заявок
|
| Процент затрат на обслуживание ЭТП | 10% |
| Сумма затрат на обслуживание ЭТП | 1 118.00 BYN Справочно по курсу НБРБ |
| Размер штрафа | 1 118.00 BYN Справочно по курсу НБРБ |
Вам предоставляется возможнсть преобрести лот
№2026.Г.002.00061.1 по начальной цене
Итоговая стоимость имущества составит:
На Ваш адрес электронной почты будет выслано подтверждение о регистрации.
Для восcтановления доступа вам нужно ввести зарегистрированный почтовый адрес. На указанный вами почтовый адрес будет выслана уникальная ссылка для создания нового пароля.